Your Premier Medical Trailer Supplier
- Customize Size
- Trailer Materials is Hospital Grade
- Medical Trailer with Air Handling Equipment
- Bring with Life-Saving Equipment
- Exterior Wall can Install Graphics with Customer’s Logo
Your Reliable Partner and Medical Trailer Manufacturer in China
Portacabinandprefab is a professional medical trailer manufacturer in China, has extensive experience to provide you a customized size in any model. The trailer body material is hospital grade, patient compartment air is purified, and the medical trailer brings life-saving equipment. We are committed to offering mobile convenient medical care and save lives.
Portacabinandprefab team can integrate the latest in medical and diagnostic technology into a mobile medical trailer designed for unparalleled patient care.Portacabinandprefab medical trailer common feathers include patient room with bench seating or medical beds, showers and changing area, decontamination room, reception area, mechanical room and air handling equipment& air compressor room.
Portacabinandprefab medical trailer wall and ceiling is smooth fiber glass board, insulated by polyurethane foam. All surfaces, edges, corners, and joints that can be exposed to any fluid will be sealed. Which is easily cleaned. Flooring is hospital grade non-slip PVC floor, and subfloor is fiber cement board 18mm. Windows size, location and quantity is open to customization, door is in curbside with aluminum foldable step.
Portacabinandprefab is your leading manufacturer of medical trailer!
- Gallery
- Data Sheet
| Body | Fiber glass sandwich panel or called FRP panel-
Luxury model EPS sandwich panel – Standard model |
| Size | Customized |
| Drawbar size | 1200mm |
| Alex | Single |
| Fresh tank | Customized size, material 5mm PE |
| Waste tank | Customized size, material 8-9mm PE |
| Weight | According to size, when water and waste tank is empty. |
| Condition | Full mounted in factory |
| Loading | In 40HQ, how many units in a 40HQ according to size |
| Delivery time | 30 days |
| Electrical | Lighting 12V, as per customer local standard |
| Our service | Engineering-production-shipping-installation-warranty-after service support you develop your business |
Portacabinandprefab Medical Trailer
Portacabinandprefab medical trailer uses ceiling mounted LED light, and scene lighting. Outside full set of trailer lights. And all the trailer chassis, axle, wheel, drawer are completely under your country standard. Portacabinandprefab exported to US, EU countries, AU, Canada and many other countries. Certified with CE, DOT, WMI.
Portacabinandprefab medical trailer also installed plumbing system, the auto faucet sink, fresh water and waste tank, and related pump.
Portacabinandprefab medical trailer interior air is circulated through the HVAC system, with high efficiency air filter and UV lamp. The exhaust fans to make negative pressure air and whole trailer without waste air leaking. The patient compartment equipped with heating and cooling air conditioner and is HEPA filtered. This unit is ducted throughout the patient compartment. Oxygen supply also be installed.
Portacabinandprefab medical trailer can include a wide variety of equipment options like electric heater, refrigerator, water heater, fire extinguisher, carbon monoxide detector, separate exam/treatment suite, trash can, broom, entrance door railings.
Want to customize your medical trailer? Contact us today!
Medical Trailer: The Complete FAQ Guide
- Chapter 1: What are the Features of Medical Trailer?
- Chapter 2: Which equipment can you Install in Medical Trailer?
- Chapter 3: What is Medical Trailer used for?
- Chapter 4: Which Sizes of Medical Trailers are there?
- Chapter 5: Who should Buy Medical Trailer?
- Chapter 6: How long will it take to Manufacture Custom Mobile
Medical Trailer?
- Chapter 7: How do you Manage Waste in Mobile Medical Trailer?
- Chapter 8: How do you Relocate Medical Trailer?
- Chapter 9: What is the difference between Mobile Medical Trailer
and Traditional Clinics?
- Chapter 10: What are the Quality Standards for Medical Trailers?
- Chapter 11: Which Materials are Medical Trailers made from?
- Chapter 12: What is Medical Trailer Price?
- Chapter 13: What Medical Trailer Design Optionsare there?
- Chapter 14: Which Amenities should Medical Trailer have?
- Chapter 15: Why Import Medical Trailer from China?
- Chapter 16: How do you Ship Medical Trailer from China?
- Chapter 17: How can you Power Medical Trailers?
- Chapter 18: Do you require VIN of Medical Trailer?
- Chapter 19: How long should a Medical Trailer be?
In this guide, you will learn about the uses, cost, waste management, equipment, type of material and designs of medical trailers.
So, before you import medical trailer from China, read this guide. It has accurate information about these container hospital facilities.
Let’s get started:
What is a Medical Trailer?
It refers to a flexible healthcare facility consisting of various medical equipment and accessories. They allow for use in a wide range of areas offering convenience to those who need it.
In short, all the vital medical equipment, accessories and departments are with a “large box” with wheels.
Of course, you need another vehicle to move or tow it from one place to another.

Figure 1 Exterior of medical trailer
Why use Medical Trailer?
The use of a medical trailer is common due to the following reasons:
· Accessibility
Medical trailer is easily accessible to those who need medical treatment.
They are simple and unique, meaning one does not spend a lot of time identifying where to seek treatment.
You can get maximum treatment by visiting these medical trailers since they are fully equipped.
· Cost
A medical trailer has a significantly lower cost when you compare to a traditional medical center.
For instance, the construction cost is lower than in conventional healthcare centers.
They have a lower operating cost since these medical trailers are easily accessible. This translates to the low cost of medical treatment for those who want to get treatment.
· Flexibility
The movement of medical trailers from one place to another allows for its versatility in terms of usage. You can easily use it in remote areas where access to a health facility is impossible
Is there a difference between Medical Trailer and Container Clinic?

Figure 2 Interior of medical trailer
Yes. There is a difference between a medical trailer and a container clinic.
A medical trailer is usually a trailer which is modified to serve as a medical facility.
A container clinic is typically a container which is modified to act as a clinical facility.
A medical trailer can act as a clinic if it meets specific criteria.
It is easier to move a medical trailer from one location to another than it is to move a container clinic.
Of course, you can still classify the two as mobile hospitals.
Can you get a Custom Mobile Medical Trailer?
Yes.
It is possible to get a customized mobile medical trailer from your manufacturer.
The process entails the submission of the specifications to your manufacturer for fabrication.
Before the manufacturing process begins, they will go through these specifications to streamline them per international standards.
What are the Features of Medical Trailer?

Figure 3 Inside medical trailer
The main features that you will get from a medical trailer.
These features facilitate the function of the medical trailer in a wide range of applications.
The main features available for a medical trailer include:
· Ventilation
Ventilation features in a medical trailer allow for proper air circulation. This ensures clean air for those using the medical trailer.
Fresh air is also useful in a medical trailer as it offers the required environment for proper drug and medical storage.
· Material
The fabrication of a medical trailer uses durable and eco-friendly materials.
Such material should be able to withstand various adverse conditions such as rain and high temperature.
An example of this material is aluminum, which forms the outer part of the medical trailer.
The entire medical trailer needs to be soundproof.
A soundproof material helps in minimizing outside sound interference, thus offering a conducive medical environment.
An insulation material helps in the regulation of temperature, which is essential for the proper working of the medical trailer.
· Accessibility
Proper accessibility should ensure the entry and exit to the medical trailer.
This feature should put into consideration the physically challenged individuals.
Where possible,you need to install rails and sloppy steps on your medical trailers.
· Security System
The security system of your medical trailer is a critical feature that you should consider.
Such a system should offer tracking of all the activities within and in the surrounding of the medical trailer.
You can have CCTV cameras at strategic points within and around the medical trailer.
You may also consider hiring a security guard to guard the entrance of the medical trailer.
Which equipment can you Install in Medical Trailer?

Figure 4 CT scan in medical trailer
A medical trailer allows for the installation of a wide range ofhospital equipment.
The equipment facilitates the functioning of the medical trailer and offers a wide range of applications.
The installation of the equipment depends on its needs. Among the machines that you will find in a medical trailer include:
- X-ray machine
- MRI scanners
- CT scanners.
- Mammogram machine
- Laboratory equipment
- Surgical equipment
- PET scanners
What is Medical Trailer used for?
A medical trailer offers a wide range of uses in different applications. Such uses include:
- Medical learning laboratory services
- Medical sales services
- Clinic services
- Mammography services
- Mobile x-ray services
- Mobile audiology services
- Mobile diabetic treatment
- Mobile labs
- Emergency trailers
- Mobile physical therapy
- Morgue
- Veterinary clinic
- Mobile health screening services
Which Sizes of Medical Trailers are there?

Figure 5 Long medical trailer
There are different sizes of medical trailers, depending on your requirements.
Furthermore, you can have a customized size for your medical trailer.
For customized size, you have to submit it to your manufacturer in advance before fabrication.
Who should Buy Medical Trailer?
Different organizations can purchase medical trailers for their use. This, however, depends on the type of medical care they want.
Among the organizations that can purchase medical trailers include:
- Schools and educational facilities
- Sporting organizations
- Health facilities including hospitals
- Military organizations
How long will it take to Manufacture Custom Mobile Medical Trailer?
The manufacturing duration of your custom medical trailer will depend on a couple of factors.
First, the customization process that you want for your medical trailer.
The more the details you want, the longer the duration it takes to customize your medical trailer.
The period will also depend on the type of manufacturer you select to fabricate your medical trailer.
A reliable medical trailer manufacturer should work on your order as soon as you agree with them. They should adhere to the timelines you agree with them.
How do you Manage Waste in Mobile Medical Trailer?

Figure 6 Short medical trailer for radiography
Proper disposal of healthcare wasteis a critical aspect of medical trailer management, given the sensitivity of medical trailer waste; there is a need to handle it with care and dispose of it appropriately.
Some of the tips you can use to manage waste in a mobile medical trailer include:
First, the staff handling medical trailers should wear protective gear to prevent infection.
This includes wearing gloves and clinical masks during the process.
Differentiate the dustbins into recyclable and non-recyclable material. The latter materials should be disposed of either by burning or burying them
If you have to burn such waste, you must dig a deep hole for that purpose. Alternatively, you can dispose of them in a pit latrine.
Burning non-recyclable waste should be in a well-defined area by the government authorities to minimize the spread of infections.
You need to contact a reputable company that can effectively recycle your waste without hurting the environment.
How do you Relocate Medical Trailer?

Figure 7 Truck pulling medical trailer
Most medical trailers are usually mounted on a trailer. This makes relocation easy and affordable since you just have to drive it to where you want.
However, before relocating your medical trailer, you need to ensure there is enough space in the place where you want to move your medical trailer.
What is the difference between Mobile Medical Trailer and Traditional Clinics?

Figure 8 Medical trailer
Mobile medical trailers are flexible when you compare to traditional clinics.
Flexibility allows you to move your medical trailer to where patients need it.
However, flexibility can reduce the visit by patients who require critical attention and in-patients.
Unless there is clear communication as to the duration your medical trailer stays in one place, it will limit the type of patients visiting.
The simplicity of medical trailers enhances their accessibility.
This means you have many people visiting a medical trailer for assistance when you compare to traditional clinics.
A well-furnished traditional clinic can serve a wide range of patients when you compare to a mobile medical trailer.
What are the Quality Standards for Medical Trailers?
Quality standards ensure you have a medical trailer that functions appropriately while offering the safety of the operators.
Among the primary quality standards for a medical trailer include:
Which Materials are Medical Trailers made from?
You will find different materials in your medical trailer. Each material has its different function that helps in its effective function.
The different materials available for your medical trailer include:
· Aluminum
The cover wall meets wall, wall meet roof is white aluminum. It is a preferred option for your medical trailer due to its unique characteristics.
For instance, it is lightweight, which reduces the overall weight of your medical trailer. Its resistivity against various climatic conditions such as rust.
· Paint
This is another feature that is common in medical trailers. Paint has to be on the inside and outside of the mobile trailer.
It enhances the appearance and beauty of your mobile trailer. Effective paint ought to be eco-friendly and doesn’t harm patients.
· Insulation Material
An insulation material helps in regulating the temperature of your mobile trailer. Temperature regulation helps both the patients and the drugs within your medical trailer.
Among the insulation materials available for your medical trailer are EPS, PU or XPS.
· Ventilators
Ventilators help in the free circulation of air within your medical trailer. This ensures fresh air within your medical trailer.
Clean air is essential for the patients visiting your medical trailer. You can consider incorporating an HVAC to offer maximum ventilation.

Figure 9 Medical trailer
What is Medical Trailer Price?
The price of your medical trailer is determined by several factors, including:
· Size and Design
A simple design will cost less than one, which has a sophisticated design. This is due to the number of materials and the technicality of the design.
· Type of Equipment
The type of equipment your manufacturer installs on your medical trailer determines its overall cost. A medical trailer can have as much medical equipment as possible to help it function appropriately.
Sophisticated equipment requires professional installation, which increases the cost of your medical trailer.
· Function
The different medical trailer serves different purposes which affect the overall price.
· Available Amenities
Amenities are the extra services that your medical trailer can offer apart from the primary medical services.
Such facilities include food and drinks, wireless and internet services, and washroom services.
These amenities have the effect of increasing the price of your medical trailer.
That means if you have a modest budget, you need to reduce the facilities that your medical trailer can have.
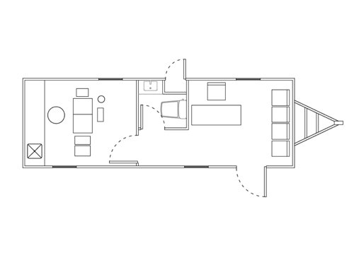
What Medical Trailer Design Optionsare there?

Figure 10 Medical trailer design
A medical trailer design gives you a custom appearance for your use.
These designs depend on which section of your medical trailer you are focusing on.
However, whichever design, you need to consider the following:
- The efficient working of the staff. You can achieve this by reducing the movement distance of your staff, especially between frequently used space.
- The design should allow for staff visual supervision of the patients.
- The design should give room for all the space needed while reducing unwanted spaces.
- Have outpatient services on one side of your medical trailer. This will allow for setting up of a separate space for patients who require close monitoring.
- The design should incorporate the same functional areas with the same system requirements. This reduces space requirements and also the cost.
- The design should have an easily accessible entry point and exit points. There should also be an emergency exit point for the proper functioning of the medical trailer.
The painting design for your medical trailer should have a psychologically healing effect on the patients visiting your medical trailer.
Standard color paints include green, blue, yellow, cream, white, and pink. These paints have the effect of enlarging the room.
The ventilation design for your medical trailer should allow for a smooth flow of air.
Where possible, you can install an HVAC system to facilitate the ventilation process.
The floor design should be easy to navigate and secure. The floor should not slide, which can easily cause injury to patients.
There is a need to have space between the rooms for the effective movement of patients and the staff. If possible, have enough space between beds for patients needing emergency services.
Which Amenities should Medical Trailer have?
The main amenities that every medical trailer should have include:
· Washrooms
Washrooms are an essential amenity in a medical trailer. Patients can help themselves when in need while waiting to be attended.
You can install the restroom within your medical trailer, or you can set mobile ones within the proximity of your medical trailer.
· Wireless and Internet Access
In a fast-changing world, sources of information and social interactions are a necessity in a medical trailer. Patients visiting the medical trailer can connect the internet via WIFI.
Installing wireless and internet in your medical trailer is relatively more straightforward and does not utilize a lot of space.
· Massage Therapy
Massage therapy is a vital element in assisting patients with specific ailments to full recovery. You can have a section of your medical trailer for this purpose.
This increases the functionality of your medical trailer as well as increasing the number of people seeking medical assistance.
· Food and Soft Drinks
Food and soft drinks help in the nourishment of those who come to seek medical assistance. You can have a stand-alonesection for this or incorporate it as part of your medical trailer.
Those seeking medical services can have snacks and light healthy foods while waiting to get their services.
· Chaplain Services
If you have a morgue section on your medical trailer, you need to have a Chaplain section.
This helps in spiritual nourishment for those coming to collect their loved ones.
Why Import Medical Trailer from China?
There are several reasons why you should import your medical trailer from China. Key among these include:
· Affordable Options
The overall importation cost of your medical trailer from China is good.
This consists of the manufacturing cost and the importation tax.
This implies high-profit margins if you are purchasing them for resale. If you are buying for your use, you will save a lot.
· Quality Medical Trailers
Most manufacturers in China tend to manufacture quality medical trailers that meet internationally recognized standards.
This is due to the high competition amongst the manufacturers.
Quality medical trailers give you quality service with a guaranteed warranty.
· Timely Delivery
Most Chinese manufacturers adhere to the production time for their medical trailers.
You, therefore, have an assurance of the delivery of your medical trailers within the time you agreed with your manufacturer.
You can, therefore, plan as you waitfor your medical trailer.
How do you Ship Medical Trailer from China?
The process of shipping a medical trailer from China is simple due to the relatively low documentations. It involves:
· Identifying Medical Trailer Manufacturer
This step involves getting into a contract with your manufacturer on the details of your medical trailer.
You need to select a reliable manufacturer who will deliver a medical trailer as per your specifications.
Once you have your manufacturer, they will go ahead and fabricate your medical trailer per your specifications.
Beating the deadline while maintaining quality is a crucial aspect of your medical trailer.
· Identifying your Freight Forwarder
To avoid the cost and cumbersomeness associated with importing medical trailer from China, you need to select a reliable shipping agent.
They will carry out the importation on your behalf from China to an agreed location.
Among the services, they will handle include packaging your medical trailer appropriately for shipping.
Selecting the shipping method from China to your premises and paying all the customs duties on your behalf.
The method of payments to your shipping agent will depend on the contract you have with them.
However, the method needs to be secure and transparent for both parties.
While shipping medical trailers from China is relatively simple, you have to consider all the customs charges and terms associated with your medical trailer.
Selecting a reliable manufacturer and a shipping agent is critical in ensuring a simple and easy shipping process from China.
How can you Power Medical Trailers?
Given the sensitivity of a medical trailer, there is a need to ensure a constant power supply.
You can achieve this by using the following power sources:
· Solar Energy

Figure 11 Solar powered for medical trailer
Solar energy offers a clean and reliable source of energy for your medical trailer. It is useful, especially in tropical climatic environments.
The use of this power source does not produce noise, which is beneficial to the working environment of a medical trailer.
Furthermore, it is relatively cheaper when you compare to other sources of power
However, the use of this source is limited to a tropical climatic environment where solar power is in plenty.
Your manufacturer can install the solar panels on top of your medical trailer.
· Power Generators
Power generators use fuel as the source of energy to power your medical trailer.
They are a common source of power for your medical trailer due to their availability.
However, they produce noise during operation, which is irritating in a medical trailer environment. It also requires enough space for installation. So here you must require silence type generator, which is usually with a shell can effectively eliminate the noise.
A generator also increases the overall weight of your medical trailer, which reduces its mobility efficiency.
Its efficiency depends on the availability of fuel to power it up. Your manufacturer can install a power generator on the body chassis of your medical trailer.
Do you require VIN of Medical Trailer?
Yes. Medical trailers should have a Vehicle Identification Number.
However, this depends on the regulations of a given country where you are operating the medical trailer.
In some jurisdictions, it is not a must.
In others, however, VIN for medical trailers will have a different color or identification system.
This helps in differentiating a medical trailer from the rest of the vehicles.
So, before you start operating your medical trailer, you need to check with the government authorities for the rules and regulations.
How long should a Medical Trailer be?
The length of your mobile trailer depends on the length of your trailer.
However, you can have a customized length for your medical trailer, depending on your requirements.
A reliable manufacturer will advise you on the appropriate length of the medical trailer that you can have.
Clearly, before you import medical container, you should evaluate everything highlighted in this guide.
It is the only sure way of getting high quality and durable medical trailer.
For custom designed medical trailers, contact Portacabinandprefab House now.












